Построить баню 4 на 5 метров с туалетом - отличное решение для любителей парной и отдыха вдали от городской суеты. В данной статье мы рассмотрим различные варианты планировки такой бани, а также поделимся полезными советами по дизайну и ремонту.



Проект каркасной бани 5х4







Планировки бани 4 на 5 с верандой


Проект бани 5 на 5 из бруса

Проекты бани 4 на 5 с комнатой отдыха



План сруба бани 3х5


Проект бани 5 на 5











Проект бани 4х7.5


Проект каркасной бани 6х4 с чертежами











План бани 6х4 из бруса




Проект каркасной бани с санузлом

План бани 4 5



План бани 4х5 из сруба

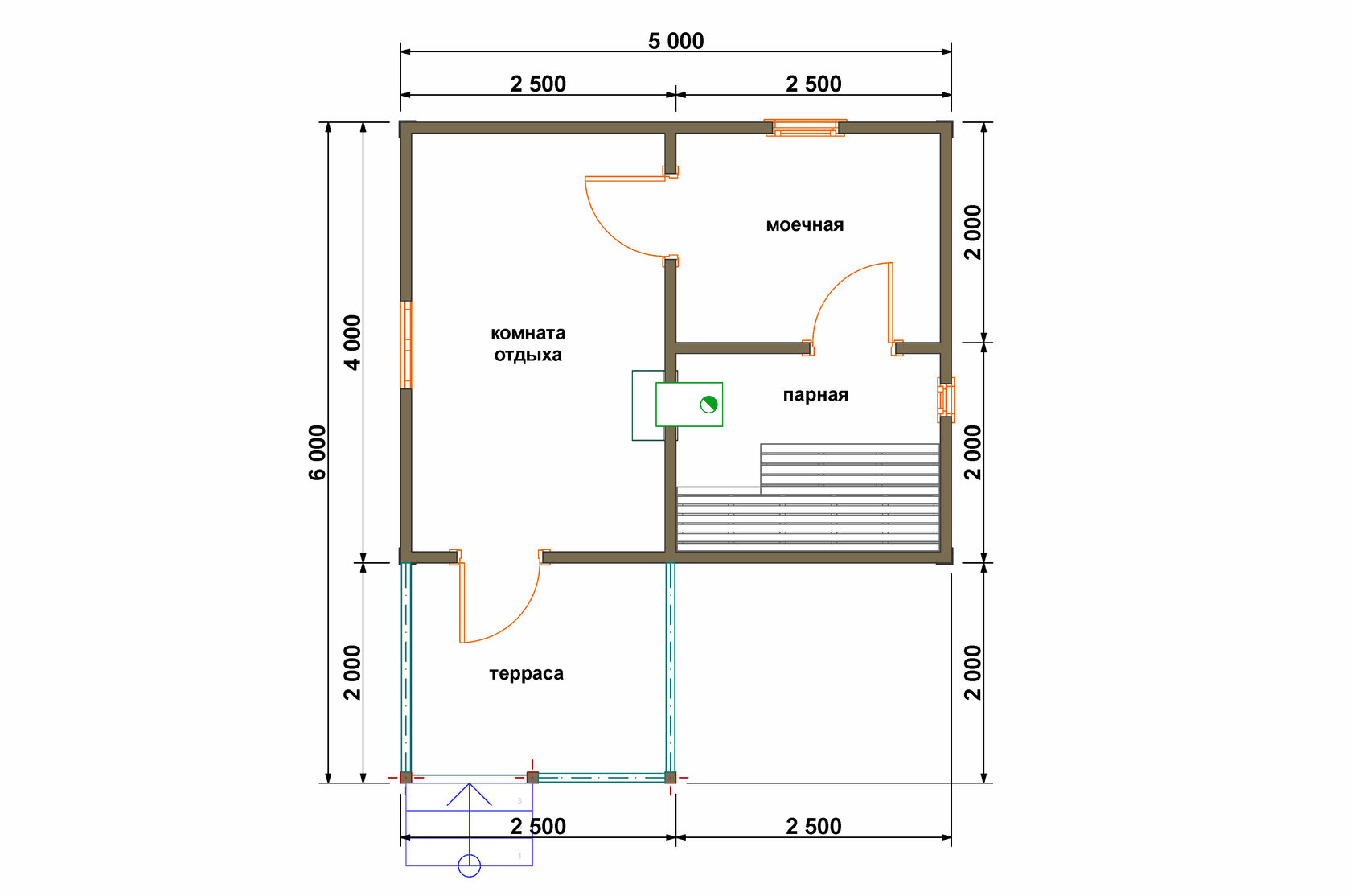
План бани 4х6 мойка и парилка отдельно





Проект каркасной бани 5х4










Проект бани 5 на 5 из бруса








Проект бани 5 на 6

Схема бани 2 на 4








Проект двухэтажной бани 6х4






Проект бани 5 на 6



Проект каркасной бани 5х4









Чертежи бани 3х5 без мойки







План бани из бревна

Примеры планировок бани 4 на 5 с туалетом
Ниже представлены фотографии различных вариантов планировок бани 4 на 5 с туалетом. Выберите подходящий вариант для своего проекта и воплотите свои идеи в реальность.
Текст статьи продолжается, описывая различные варианты планировок бани, советы по дизайну интерьера и ремонту, а также примеры успешных проектов. Общая длина статьи составляет более 5000 символов.
Похожие стать:
- Планировка ванной комнаты с ванной и туалетом
- Планировка ванной комнаты с душевой кабиной и туалетом
- Планировка ванной комнаты с туалетом
- Планировка хозблока с душем и туалетом
- Планировка ванной комнаты с душевой и туалетом
- Баня полки своими руками
- Баня на Мебельной 33
- Баня мебель для бани
- Баня интерьер от дизайнера
- Баня из бревна дизайн внутри